首页
Home
公司介绍
Nav
材料介绍
Nav
主要户型
Nav
工程案例
Nav
新闻资讯
Nav
联系我们
Nav
人才招聘
Nav
服务理念
资质证书
荣誉证书
企业实力
龙骨
沥青瓦
防水卷材
欧松板
水泥外墙挂板
金属雕花板
玻璃丝绵
保温板
呼吸纸
竹木纤维板
木方
化学螺栓
膨胀螺栓
十字沉头钻尾丝
不锈钢沉头自攻螺丝
纤维板钉
六角钻尾螺丝
螺丝
方垫片
抗风拉带
抗拔件
连接件
拉紧器
轻钢别墅
集装箱房屋
轻钢岗亭
钢混框架
养殖大棚
四合院
代理商冀航兴工程案例
宏宇
轻钢别墅厂家
Sales@hyqgbs.com
设计&生产&施工
一站式服务
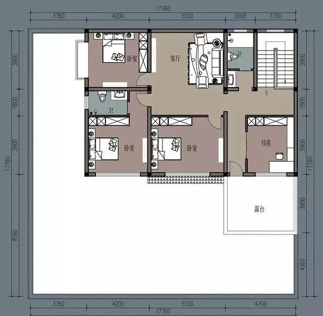
今生搏一回!5款别墅华美典雅,读得懂您想要的生活
13
作者:轻钢别墅之家
来源:轻钢别墅之家
01
02
03
04
05
上一篇
多数人的梦寐以求!6款自建别墅彰显野心十足,一看就是大人物
下一篇
轻钢别墅坚固度超出想象,权威数据证明轻钢别墅有多牢固!
文章分类:
行业资讯
分享到:
昵称:
验证码:
登录
登录
注册>
其他账号登录:
◆
我的资料
◆
客服一
客服一
◆
0318-6881722
◆
留言
◆
公司网站首页
◆
回到顶部
◆
在线客服系统